当前位置:
政府信息公开
>
部门信息公开
>
部门信息公开
>
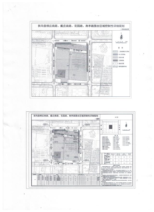
扶沟县桐丘南路、戴庄南路、花园路、帛亭路围合区域控制性详细规划
来源: 扶沟县人民政府
时间: 2025-09-12 16:39:01
访问量:
0
字体大小[
大
中
小
]
打印
分享:
责任编辑:扶沟自然资源局